D’Evia Residence @ Kwasa Damansara is a contemporary high-rise condominium located within the vibrant and fast-growing Kwasa Damansara township in Selangor, Malaysia. Positioned in a prime location with excellent accessibility to major highways such as the Guthrie Corridor Expressway (GCE), NKVE, and Sungai Buloh MRT Station, this development offers unmatched convenience for urban commuters. As one of the newest residential launches in the expansive 2,330-acre Kwasa Damansara master plan, D’Evia Residence features modern design, smart living layouts, and close proximity to schools, shopping malls, parks, and healthcare facilities—making it a perfect choice for families, professionals, and property investors seeking value and long-term growth potential in Klang Valley.

D’Evia Residence @ Kwasa Damansara is a contemporary high-rise condominium located within the vibrant and fast-growing Kwasa Damansara township in Selangor, Malaysia. Positioned in a prime location with excellent accessibility to major highways such as the Guthrie Corridor Expressway (GCE), NKVE, and the Sungai Buloh MRT Station, this development offers seamless connectivity for urban commuters. As one of the latest residential offerings in the expansive 2,330-acre Kwasa Damansara master plan, D’Evia Residence features smartly designed units ranging from 657 sq. ft. (2-bedroom), 958 sq. ft. (3-bedroom), to 1,109 sq. ft. (4-bedroom) layouts. With modern living spaces and close proximity to schools, shopping malls, parks, and healthcare facilities, it is an ideal choice for families, working professionals, and property investors looking for value, comfort, and long-term growth potential in Klang Valley.

Type A1  | 657 sq.ft

2 Bedroom | 2 Bathroom | 2 Single Carpark

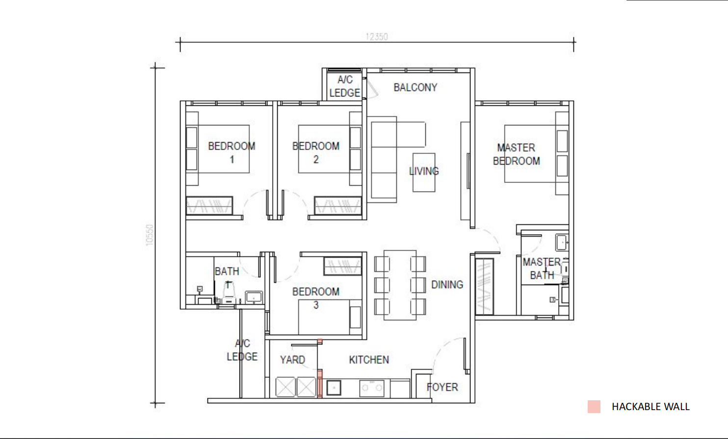
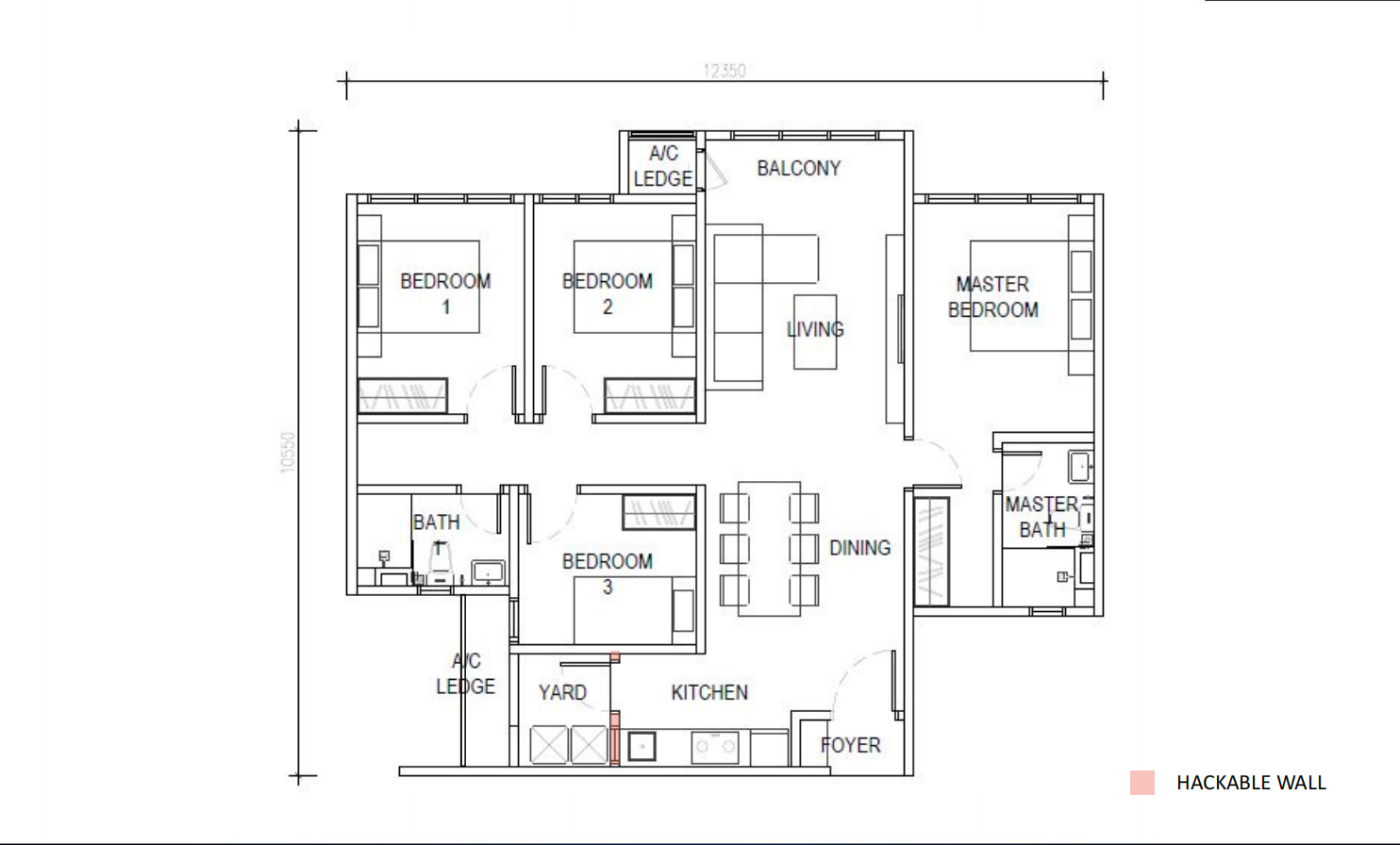
Type B1 & B2  | 958 sq.ft

3 Bedroom | 2 bathroom | 2 Carpark

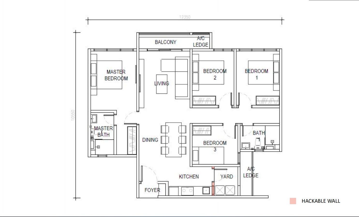
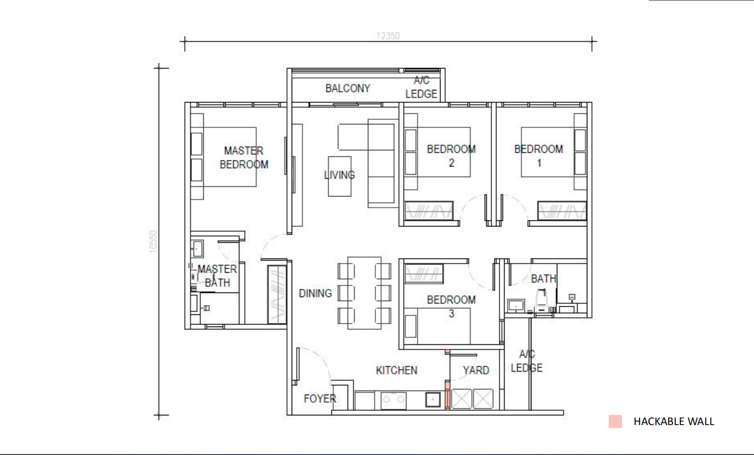
Type B3 & B4  | 958 sq.ft

3 Bedroom | 2 bathroom | 2 Carpark

Type C1  | 1109 sq.ft (With Balcony)

4 Bedroom +2 Bathroom | 2 bathroom | 3 Carpark

Type C2  | 1109 sq.ft (Without Balcony)

4 Bedroom | 2 bathroom | 3 Carpark